Archiwum ofert nieruchomości
Lokalizacja: Mysłowice, ul. Karola Miarki
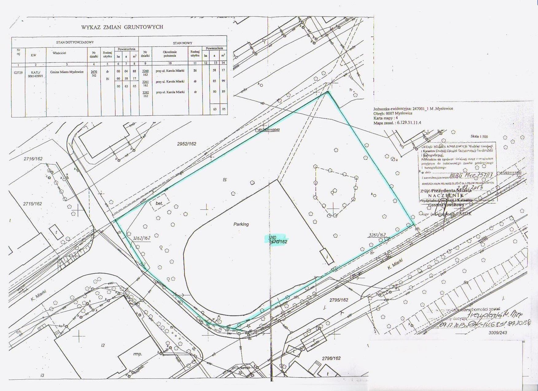
Powierzchnia: 0,5817 ha
1. Położenie
- Nieruchomość położona w Mysłowicach przy ulicy Karola Miarki, niezabudowana
- Adres: 41 - 400 Mysłowice, ul. Karola Miarki.
- W skład nieruchomości wchodzi działka oznaczona numerem ewidencyjnym 3260/162 o pow. 5817 m2, na karcie mapy 4 obrębu Mysłowice, posiadająca w operacie ewidencji gruntów użytek oznaczony symbolem Bi, objęta księgą wieczystą KA1L/00014090/1 Sądu Rejonowego w Mysłowicach.
2. Charakterystyka działki
- Właścicielem nieruchomości jest Gmina Mysłowice.
- Łączna powierzchnia nieruchomości wynosi0,5817 ha
- Przeznaczenie w miejscowym planie zagospodarowania przestrzennego miasta: teren nie posiada pokrycia planem miejscowym, a Studium Uwarunkowań i Kierunków Zagospodarowania Przestrzennego Miasta Mysłowice zatwierdzone uchwałą Rady Miasta Mysłowice Nr XXX/656/08 z dnia 30 października 2008 r. wyznacza dla niego strefę:
MN – tereny zabudowy jednorodzinnej
- Nieruchomość usytuowana jest w śródmieściu Mysłowic przy drodze gminnej ulicy Karola Miarki. Teren ten jest równy, zadrzewiony w części północno - wschodniej i zachodniej. W centralnej części działki znajduje się plac asfaltowy, pozostała część porośnięta jest trawą. W sąsiedztwie nieruchomości znajdują się wielorodzinne budynki mieszkalne oraz zakłady produkcyjno - usługowe.
- Dojazd komunikacją zbiorową: autobusami linii KZK GOP Nr 35, 44, 66, 76, 77, 106, 149, 223, 778, 931 i 995 do przystanku Mysłowice Dworzec PKP, a następnie przejście pieszo.
- Uzbrojenie - przez działkę przebiegają sieci uzbrojenia podziemnego przy zachodniej granicy: wodociągowa i elektryczna, a północno – wschodniej: przewód telewizji kablowej. Wpasie drogi publicznej ulicy Karola Miarki znajdują się sieci: wodociągowa, kanalizacyjna, energetyczna i teletechniczna.
3. Sposób zagospodarowania
Zabudowa nieruchomości i jej zagospodarowanie nastąpi na podstawie decyzji o warunkach zabudowy, wydanej na wniosek nabywcy. Teren przeznaczony został pod zabudowę na cele usługowe lub mieszkaniowo – usługowe, na którym zrealizować można można między innymi usługi pierwszej potrzeby (np. sklep osiedlowy) oraz obiekty mieszkaniowe wysokiej intensywności. W zakresie niezbędnym do prawidłowego funkcjonowania i zagospodarowania nieruchomości jej nabywca własnym staraniem i na własny koszt, zobowiązany będzie do zrealizowania uzbrojenia technicznego dla zamierzonej inwestycji oraz zapewnienia dostawy mediów, a także w razie takiej konieczności uzyskania zezwolenia i dokonania wycinki istniejącej zieleni. W przypadku, gdyby projektowana zabudowa kolidowała z przebiegającymi sieciami, nabywca na własny koszt i we własnym zakresie dokona ich przekładki po dokonaniu uzgodnień w tym zakresie z właścicielami sieci.
Obsługa komunikacyjna nieruchomości odbywaćsię będzie z drogi publicznej ulicy Karola Miarki poprzez istniejący zjazd.
- Tryb zbycia.
Ustny przetarg nieograniczony.
Szczegółowych informacji dotyczących przedmiotowej nieruchomości można uzyskać w Wydziale Gospodarki Nieruchomościami, tel. kontaktowy nr (32) 3171236, a informację o możliwości zabudowy tego terenu w Wydziale Architektury i Budownictwa tel. kontaktowy nr (32) 3171324 w godzinach pracy Urzędu Miasta.







