Archiwum ofert nieruchomości
Informacja o terenie niezabudowanym, przygotowanym do zbycia pod zabudowę mieszkaniową jednorodzinną.
1. Położenie
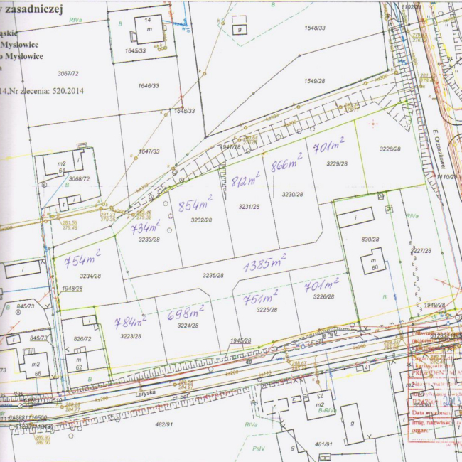
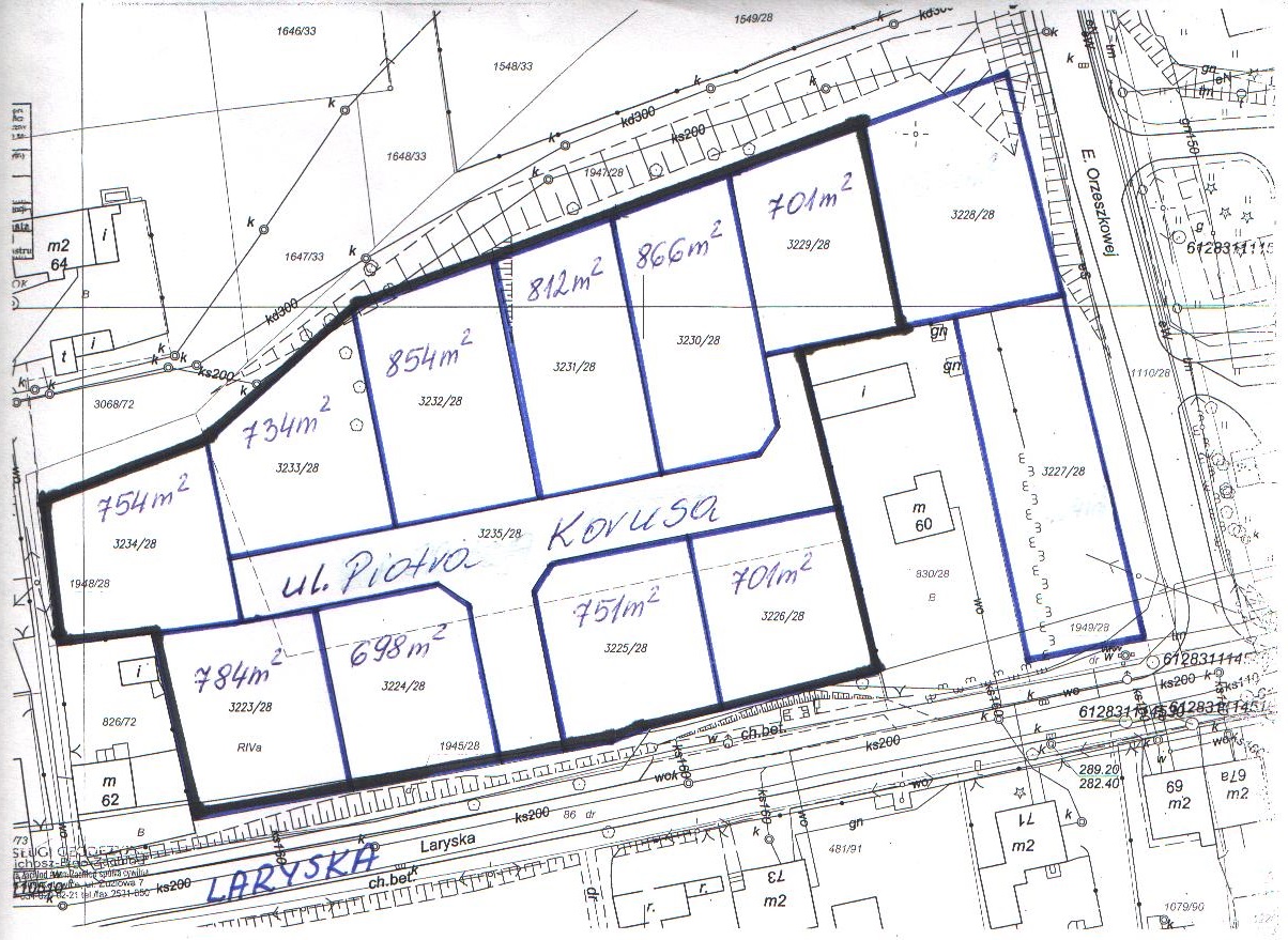
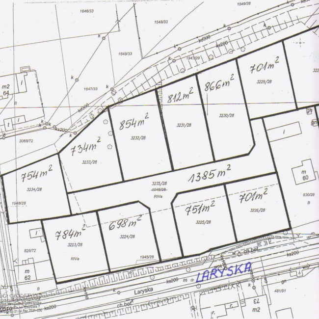
Nieruchomości niezabudowane, położone w Mysłowicach – Laryszu w rejonie ulic: Laryskiej i Piotra Korusa Adres: 41 - 404 Mysłowice, ul. Laryska.
W skład nieruchomości wchodzą działki położone na karcie mapy 3 obrębu Brzezinka, zapisane w księdze wieczystej nr KA1L/00011382/4 Sądu Rejonowego w Mysłowicach, przeznaczone pod zabudowę mieszkaniową jednorodzinną, oznaczone numerami:
- nr 3223/28 o pow. 784 m2,
- nr 3224/28 o pow. 698 m2,
- nr 3225/28 o pow. 751 m2,
- nr 3226/28 o pow. 701 m2,
- nr 3229/28 o pow. 701 m2,
- nr 3230/28 o pow. 866 m2,
- nr 3231/28 o pow. 812 m2,
- nr 3232/28 o pow. 854 m2,
- nr 3233/28 o pow. 734 m2,
- nr 3234/28 o pow. 754 m2.
2. Charakterystyka nieruchomości
Właścicielem nieruchomości jest Gmina Mysłowice.
Łączna powierzchnia nieruchomości wynosi 7655 m2.
Przeznaczenie w miejscowym planie zagospodarowania przestrzennego miasta:
Brak miejscowego planu zagospodarowania przestrzennego. W obowiązującym Studium Uwarunkowań i Kierunków Zagospodarowania Przestrzennego Miasta Mysłowice uchwalonym przez Radę Miasta Mysłowice uchwałą Nr XXX/656/08 z dnia 30 października 2008 r. w/w działki położone są w strefie ozn. MN – tereny zabudowy jednorodzinnej. Zagospodarowanie nieruchomości nastąpi na podstawie szczegółowych warunków, które zostaną określone na wniosek nabywcy w decyzji o warunkach zabudowy.
Dojazd komunikacją indywidualną: ul. Laryską.
Dojazd komunikacją zbiorową: autobusami linii KZK GOP Nr 76, Nr 76N, Nr 106, Nr 788.
Uzbrojenie - rejon nieruchomości uzbrojony jest w sieci: wodociągową, kanalizacyjną, gazową, energetyczną i teletechniczną.
3. Sposób zagospodarowania
Charakterystyka: Działki niezabudowane przeznaczone pod budownictwo mieszkaniowe jednorodzinne. Na terenie zbywanych działek występują znaczne różnice wysokości, teren nachylony w kierunku północnym zakończony skarpą. Część nieruchomości porośnięta jest samosiejkami drzew i krzewów - wymaga uporządkowania oraz dokonania wycinki drzew kolidujących z planowaną zabudową działek. Wzdłuż południowej granicy działek: nr 3223/28, nr 3224/28, nr 3235/28, nr 3225/28 i nr 3226/28 przebiega podziemna sieć teletechniczna, a przez działki nr 3225/28 i nr 3226/28 dodatkowo podziemna sieć energetyczna. Na działce nr 3230/28 (w północno-zachodnim narożu) znajduje się nieczynny słup oświetleniowy. Powyższe uzbrojenie terenu w niewielkim stopniu utrudnia zagospodarowanie nin. działek. Nabywcy zobowiązani będą zapewnić właścicielom sieci dostęp do sieci, celem przeprowadzenia konserwacji lub usunięcia awarii. Przedmiotowe działki mogą być wykorzystana pod zabudowę z zastrzeżeniem, że projektowane obiekty budowlane nie mogą naruszać istniejącego uzbrojenia terenu i przy ich lokalizacji zostaną zachowane odpowiednie odległości od sieci. W przypadku gdyby jednak projektowana zabudowa kolidowała z przebiegającymi sieciami, nabywcy zobowiązani będą na własny koszt dokonać przełożenia sieci, po uzgodnieniu z ich gestorami. Obsługa komunikacyjna wyżej wym. działek będzie się odbywać od ul. Laryskiej, po działce gminnej nr 3235/28, przeznaczonej pod wewnętrzną ogólnodostępną drogę dojazdową, której nadano nazwę ul. Piotra Korusa. Lokalizację zjazdu nabywcy uzgodnią z zarządcą drogi w odrębnym postępowaniu. Zagospodarowanie nieruchomości nastąpi na podstawie szczegółowych warunków, które zostaną określone na wniosek nabywcy w decyzji o warunkach zabudowy. Zbywane działki znajdują się na obszarze terenu górniczego, w związku z czym przy ustalaniu warunków zabudowy, konieczne będzie uzyskanie stanowiska właściwego państwowego organu nadzoru górniczego.
Nabywcy zobowiązani będą na własny koszt i we własnym zakresie: Wykonać badanie geotechniczne gruntu; Dokonać wycinki zieleni, po wcześniejszym uzyskaniu decyzji zezwalającej na usunięcie drzew i krzewów kolidujących z planową inwestycją (ewentualne opłaty z tym związane ponoszą nabywcy); W razie potrzeby zniwelować i uporządkować teren; Uzyskać aktualne uzgodnienia branżowe przebiegu sieci i urządzeń uzbrojenia terenu; Zrealizować niezbędne dla zamierzonej inwestycji uzbrojenie techniczne oraz uzyskać we własnym zakresie zapewnienia dostawy mediów i odbioru ścieków, a także wód opadowych.
4. Tryb zbycia
Przetarg ustny nieograniczony na sprzedaż poszczególnych działek.
W przypadku zainteresowania nabyciem przedmiotowych nieruchomości szczegółowych informacji udziela Wydział Gospodarki Nieruchomościami Urzędu Miasta w Mysłowicach przy ul. Powstańców 1 tel. 32 31 71 236. Szczegółowych informacji o możliwości zabudowy działek można uzyskać w Wydziale Architektury i Budownictwa Urzędu Miasta w Mysłowicach przy Placu Wolności 2, tel. 32 31 71 324 (w godz. pracy urzędu).







