Archiwum ofert nieruchomości
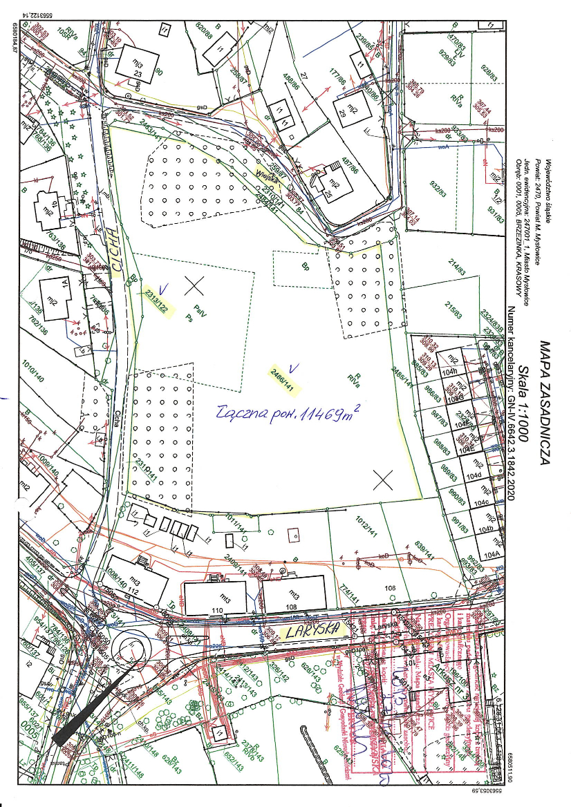
Lokalizacja: ul. Cicha - Wiejska
Informacja o terenie niezabudowanym, przygotowanym do zbycia pod zabudowę mieszkaniową wielorodzinną.
1. Położenie.
Nieruchomość niezabudowana, położona w Mysłowicach – Laryszu u zbiegu ulic: Cichej i Wiejskiej.
Adres: 41 - 404 Mysłowice, ul. Cicha.
W skład nieruchomości wchodzą działki na arkuszu mapy 1, obrębu 0001 Brzezinka, o łącznej pow. pow. 11469 m2, tj. działka nr 2486/141 o pow. 11345 m2 zapisana w księdze wieczystej nr KA1L/00026232/6 oraz działka nr 2313/122 o pow. 124 m2 zapisana w księdze wieczystej nr KA1L/00026193/0 Sądu Rejonowego w Mysłowicach, z przeznaczeniem pod zabudowę mieszkaniową, zgodną z zapisami obowiązującego planu miejscowego.
2. Charakterystyka nieruchomości.
Właścicielem nieruchomości jest Gmina Mysłowice.
Łączna powierzchnia nieruchomości wynosi 11469 m2.
Przeznaczenie w miejscowym planie zagospodarowania przestrzennego miasta:
Zgodnie z uchwalonym przez Radę Miasta Mysłowice uchwałą nr XXI/267/20 z dnia 13 lutego 2020 roku, miejscowym planem zagospodarowania przestrzennego Morgi w Mysłowicach, w/w działki położone są w strefie oznaczonej symbolem: 2.MW – tereny zabudowy mieszkaniowej wielorodzinnej. Zagospodarowanie nin. nieruchomości nastąpi na podstawie szczegółowych ustaleń wyżej wym. planu miejscowego.
Dojazd komunikacją indywidualną – ul. Cichą, ul. Wiejską.
Dojazd komunikacją zbiorową: autobusami linii KZK GOP Nr 76, Nr 76N, Nr 106, Nr 160, Nr 219, Nr 788 i Nr 995 do ulicy Laryskiej.
Uzbrojenie - rejon nieruchomości uzbrojony jest w sieci: wodociągową, gazową, energetyczną, teletechniczną, kanalizacji sanitarnej i deszczowej.
3. Sposób zagospodarowania.
Charakterystyka: Działki niezabudowane, położone w Mysłowicach – Laryszu u zbiegu ulic: Cichej i Wiejskiej, przeznaczone do sprzedaży łącznie jako jedna zorganizowana całość gospodarcza o ogólnej pow. 11469 m2, pod zabudowę mieszkaniową wielorodzinną, zgodną z zapisami wyżej wym. miejscowego planu zagospodarowania przestrzennego. Zbywana nieruchomość posiada kształt nieregularny, porośnięta jest roślinnością wymagającą wycinki (drzewa i krzewy – samosiejki). Przy południowej granicy działki nr 2486/141 znajdują się pozostałości (resztki) po ogródkach, wymagające uporządkowania. Przedmiotowe grunty objęte są wpływami aktualnej eksploatacji górniczej oraz płytkiej eksploatacji dokonanej w przeszłości. W granicach w/w działek oraz w ich sąsiedztwie znajdowały się liczne szyby i szybiki związane z płytką eksploatacją pokładu (na zbywanych gruntach zlokalizowane są 2 zlikwidowane szybiki, nin. teren położony jest częściowo w strefie uskokowej). Powyższe działki znajdują się na obszarze terenu górniczego, w związku z czym wznoszenie trwałych budowli i urządzeń, wymagać będzie uzgodnienia z właściwym organem państwowego nadzoru górniczego. Obsługa komunikacyjna zbywanego terenu może się odbywać z drogi publicznej – ul. Wiejskiej i ul. Cichej. Lokalizację zjazdu nabywca uzgodni z zarządcą drogi w odrębnym postępowaniu. Nabywca zobowiązany będzie we własnym zakresie i na własny koszt: Wykonać badanie geotechniczne gruntu; Dokonać wycinki zieleni, po wcześniejszym uzyskaniu decyzji zezwalającej na usunięcie drzew i krzewów kolidujących z planową inwestycją (ewentualne opłaty z tym związane ponosi nabywca); W razie potrzeby dokonać drenażu i odwodnienia nieruchomości; Uporządkować teren; Uzyskać uzgodnienia branżowe przebiegu sieci i urządzeń uzbrojenia terenu; Zrealizować niezbędne dla zamierzonej inwestycji uzbrojenie techniczne i uzyskać we własnym zakresie zapewnienia dostawy mediów oraz odbioru ścieków i wód opadowych.
4. Tryb zbycia.
Przetarg ustny nieograniczony na sprzedaż nieruchomości (w całości).
W przypadku zainteresowania nabyciem przedmiotowych gruntów szczegółowych informacji udziela Wydział Geodezji i Gospodarki Nieruchomościami Urzędu Miasta w Mysłowicach przy ul. Powstańców 1 tel. 32 31 71 236. Szczegółowych informacji o możliwości zabudowy nieruchomości można uzyskać w Wydziale Architektury, Budownictwa i Planowania tel. 32 31 71 320 (w godz. pracy urzędu).







