Archiwum ofert nieruchomości

Drukuj Powiększ tekst (skrót: +) Pomniejsz tekst (skrót: -)
Status: Archiwalna
Lokalizacja: Mysłowice, ul. Laryska
Powierzchnia: 9,708 m2

Informacja o terenie niezabudowanym, przygotowanym do zbycia pod budownictwo mieszkaniowe jednorodzinne w zabudowie wolnostojącej.

  1. Położenie
    • Nieruchomość niezabudowana, położona w Mysłowicach - Laryszu w rejonie ulic: Laryskiej-Cichej-Wiejskiej.
    • Adres: 41 - 404 Mysłowice, ul. Laryska.
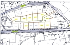
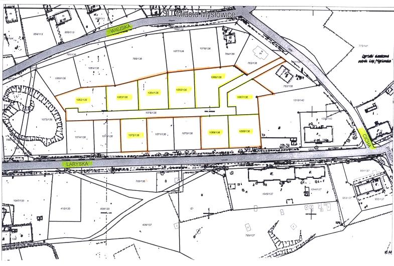
    • W skład nieruchomości wchodzą działki, na karcie mapy 1C obrębu Brzezinka, zapisane w księdze wieczystej KW 11094 Sądu Rejonowego, przeznaczone pod budownictwo mieszkaniowe jednorodzinne w zabudowie wolnostojącej, oznaczone numerami:
      1. nr 1067/136 o pow. 887 m2
      2. nr 1068/136 o pow. 984 m2
      3. nr 1069/136 o pow. 864 m2
      4. nr 1072/136 o pow. 816 m2
      5. nr 1062/136 o pow. 959 m2
      6. nr 1063/136 o pow. 801 m2
      7. nr 1064/136 o pow. 922 m2
      8. nr 1065/136 o pow. 927 m2
      9. nr 1066/136 o pow. 1.208 m2
      10. oraz udział w działce nr 1076/136 o pow. 1.936 m2 przeznaczonej pod wewnętrzną drogę dojazdową, zapisanej obecnie w księdze wieczystej KW 38551.
  2. Charakterystyka działki
    • Właścicielem nieruchomości jest Gmina Miasto Mysłowice.
    • Łączna powierzchnia nieruchomości wynosi ok. 9,708 m2
    • Przeznaczenie w miejscowym planie zagospodarowania przestrzennego dzielnicy "MORGI ZACHÓD" w Mysłowicach:

      MU II - tereny zabudowy jednorodzinnej z dopuszczeniem funkcji usługowej, jako funkcji uzupełniającej.
    • Dojazd komunikacją indywidualną: ul. Laryską, Cichą, Wiejską.
    • Dojazd komunikacją zbiorową: autobusami linii KZK GOP Nr 44, Nr 76, Nr 106, Nr 266, Nr 788.
    • Uzbrojenie - rejon nieruchomości uzbrojony jest w sieci: wodociągową, gazową, energetyczną, teletechniczną i kanalizacji sanitarnej (w budowie - przy ul. Laryskiej).
  3. Sposób zagospodarowania
    Charakterystyka: Działki niezabudowane, winny być wykorzystane pod zabudowę mieszkaniową jednorodzinną, zgodnie z zapisami miejscowego planu zagospodarowania przestrzennego dzielnicy "Morgi Zachód" w Mysłowicach. Obsługa komunikacyjna zbywanych działek winna się odbywać od ul. Cichej poprzez działkę nr 1076/136, przeznaczoną pod wewnętrzną drogę dojazdową. Przez działki nr: 1068/136, 1069/136, 1072/136, przebiegają dwa kable teletechniczne podziemne, a przez działkę nr 1068/136 dodatkowo kabel energetyczny, który przebiega również w pobliżu południowej granicy pozostałych w/w działek. Przedmiotowe działki mogą być wykorzystane pod zabudowę z zastrzeżeniem, że projektowane obiekty budowlane nie mogą naruszać istniejącego uzbrojenia podziemnego terenu i przy jego lokalizacji zostaną zachowane odpowiednie odległości od sieci. W przypadku, gdyby jednak projektowana zabudowa kolidowała z przebiegającymi sieciami, nabywcy w/w działek zobowiązani będą na własny koszt dokonać przełożenia sieci, po uzgodnieniu z ich gestorami, zobowiązani również będą zapewnić właścicielom sieci dostęp do sieci, celem przeprowadzenia konserwacji lub usunięcia awarii. Ponadto nabywcy zobowiązani będą we własnym zakresie i na własny koszt:
    • W razie konieczności dokonać wycinki zieleni, po wcześniejszym uzyskaniu decyzji zezwalającej na usunięcie drzew i krzewów kolidujących z inwestycją (ewentualne opłaty z tym związane ponosi nabywca);
    • Zrealizować niezbędne dla zamierzonej inwestycji uzbrojenie techniczne i uzyskać we własnym zakresie zapewnienia dostawy mediów oraz rozwiązać sposób odprowadzania i odbioru ścieków, a także wód opadowych;
    • Wykonać badanie geotechniczne gruntu;
    • Wspólnie z pozostałymi współwłaścicielami działki nr 1076/136 o pow. 1.936 m2, wykonać wewnętrzną drogę dojazdową na tej działce, do działek nabytych w przetargu.
  4. Tryb zbycia.

    Przetarg ustny nieograniczony na sprzedaż poszczególnych działek wraz z udziałem 1/13 cz. w działce nr 1076/136 przeznaczonej pod wewnętrzną drogę dojazdową.

    W przypadku zainteresowania nabyciem przedmiotowych działek szczegółowych informacji udziela

    Wydział Gospodarki Nieruchomościami i Nadzoru Właścicielskiego
    Urzędu Miasta w Mysłowicach

    tel. 32 317 12 36
    e-mail: um@myslowice.pl
Zdjęcia:
Konsultacje społeczneZarządzenia Prezydenta MiastaUchwałye-PUAPWniosek o udostępnienie informacji publicznejBIP